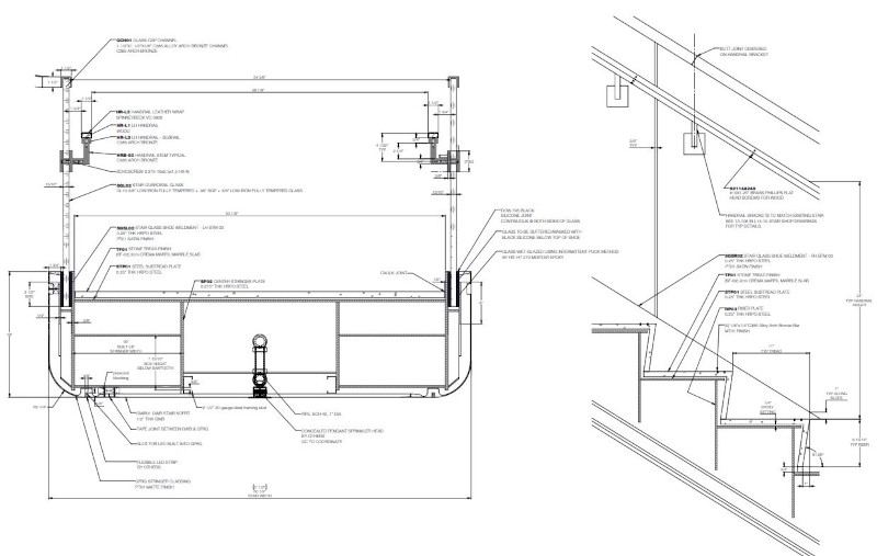
Feature stair for wealth management firm with GFRG underside cladding.
Architect: Ted Moudis Associates Contractor: James E. Fitzgerald